Verkocht

Alberikpad 17 Amersfoort

Omschrijving

Dat dit een heerlijke plek is om te wonen, staat wel vast – de huidige bewoonster heeft hier maar liefst 52 jaar met veel plezier gewoond! Deze verrassend ruime en lichte tussenwoning aan het Alberikpad 17 in Amersfoort heeft veel te bieden: vier slaapkamers, groene omgeving en een zonnige tuin. De nabijgelegen garage wordt optioneel te koop aangeboden.

De locatie is ideaal voor gezinnen: diverse scholen en speelvelden liggen op korte loopafstand, net als het Park Schothorst en diverse sportvoorzieningen. Winkelcentrum Schothorst ligt op enkele minuten fietsen net als het NS-station Schothorst. De A1 en A28 zijn ook goed bereikbaar– ideaal voor forenzen. En tevens fiets je binnen vijf minuten naar het gezellige stadscentrum van Amersfoort. Een plek dus waar rust, ruimte en gemak prettig samenkomen.

De woning heeft energielabel C, is voorzien van dubbele beglazing (deels HR) en beschikt grotendeels over onderhoudsarme kunststof kozijnen.

Zin om deze leuke woning met eigen ogen te bekijken? Plan dan eenvoudig een bezichtiging via de website van Fred de Bas Makelaardij en ontdek zelf wat deze mooie woning allemaal te bieden heeft!

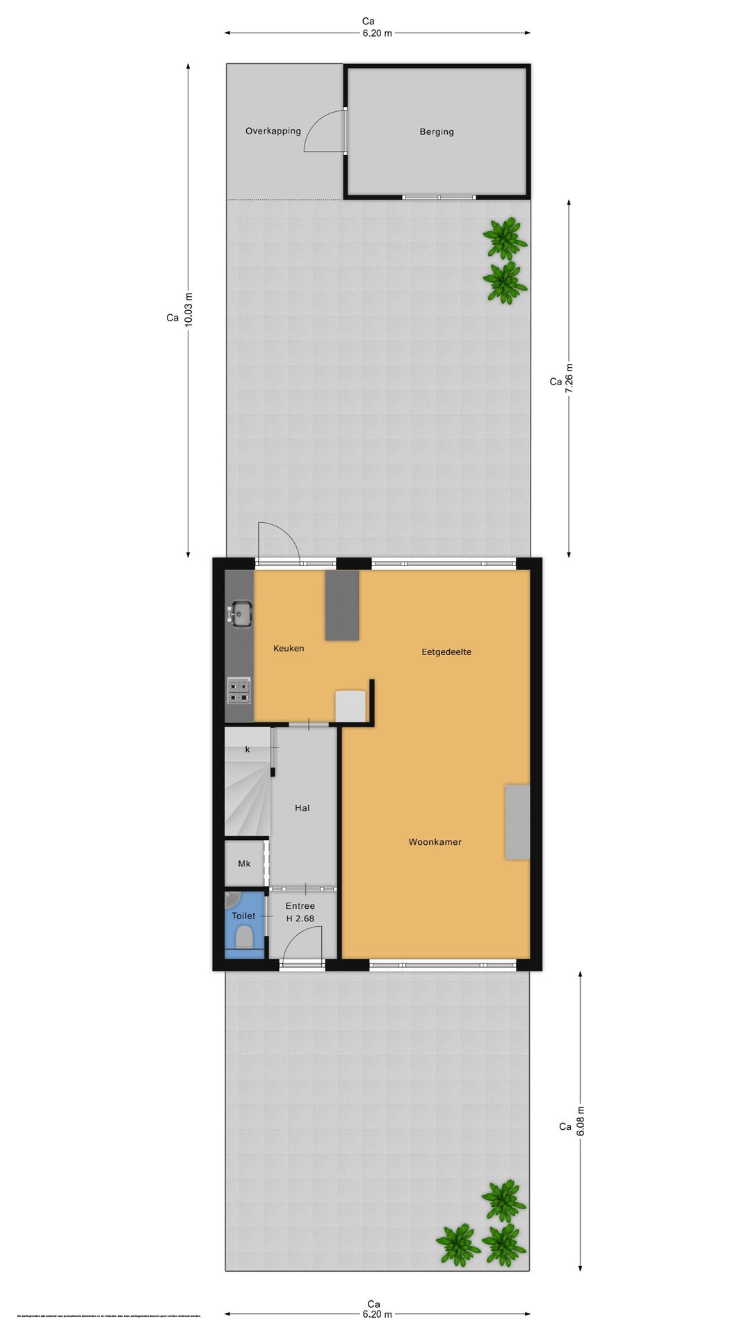
Indeling:
Begane grond
Via de ruime voortuin kom je binnen in de vestibule met toilet en doorgang naar de hal met trapopgang en handige bergkasten. De lichte doorzonwoonkamer met sfeervolle gashaard biedt volop ruimte voor een gezellige zithoek en een grote eettafel. De halfopen keuken aan de achterzijde is voorzien van een gaskookplaat, afzuigkap en vaatwasser en biedt toegang tot de achtertuin.

De achtertuin ligt gunstig op het zuidoosten en heeft een fijn terras direct aan het huis. Verder vind je hier een mooie mix van volwassen groen en meerdere zitplekken, waaronder een beschutte overkapping naast de berging achterin de tuin. De tuin is ook bereikbaar via een achterom en beschikt over een (fietsen)berging van circa 9,3 m².

Eerste verdieping
Vanaf de overloop zijn de badkamer en drie slaapkamers bereikbaar: twee ruime kamers (voor en achter), beide met twee vaste kasten, en een derde (slaap)kamer van goed formaat aan de achterzijde. De badkamer is netjes en praktisch ingericht met een ligbad, aparte douche, toilet en wastafel.

Tweede verdieping
De zolderverdieping biedt volop ruimte! Op de overloop is veel bergruimte, de cv-opstelling en de aansluiting voor de wasmachine. De ruime vierde slaapkamer heeft een dakkapel, dakraam en wastafel; een ideale plek als ouderslaapkamer, werkkamer of tienerkamer. Mogelijkheid op te delen in twee slaapkamers.

Kenmerken
-woonoppervlakte 126m2
-berging 9,3 m2
-perceel 166m2
-bouwjaar 1973
-energielabel C
-koopprijs nabijgelegen garage € 32.500,- kosten koper
-oplevering in overleg

Lees de volledige omschrijving

Contact

Kenmerken

Algemeen

Aangeboden sinds
13 november 2025
Status
Verkocht
Aanvaarding
In overleg
Soort woonhuis
Eengezinswoning, tussenwoning
Soort bouw
Bestaande bouw
Bouwjaar
1973
Soort dak
Pannen

Oppervlakten en inhoud

Wonen
126 m²
Externe bergruimte
9 m²
Perceel
166 m²
Inhoud
436 m³

Indeling

Aantal kamers
5 kamers (4 slaapkamers)
Aantal badkamers
1 badkamer
Badkamervoorzieningen
Douche, ligbad, toilet, wastafel
Aantal woonlagen
3

Energie

Energielabel
C
Isolatie
Dubbel glas
Verwarming
Cv ketel, gashaard
Warm water
Cv ketel
Cv-ketel
Nefit Trendline (gas gestookt combiketel uit 2014, )

Kadastrale gegevens

Perceelnaam
Amersfoort K 1952
Oppervlakte
166 m²
Eigendomssituatie
Volle eigendom
Perceel
AMF00-K-1952

Buitenruimte

Tuin
Achtertuin, voortuin
Achtertuin
62 m²
Ligging tuin
Zuidoost

Garage

Capaciteit
1 auto
Bekijk alle kenmerken

Overige media