Verkocht onder voorbehoud

Camera Obscurastraat 152 Amersfoort

Omschrijving

Een fijn appartement met een praktische indeling, lekker veel licht en alles binnen handbereik!

Dit ruim opgezette 3-kamerappartement ligt boven het winkelcentrum van Schothorst; je hebt alle winkels voor de dagelijkse boodschappen letterlijk om de hoek. Binnen 10 minuten fiets je naar het gezellige centrum van Amersfoort, en via de Ringweg ben je zó op de A28 of A1.

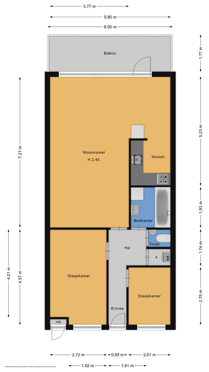
Indeling:
Het appartement heeft een ruimtelijke en overzichtelijke indeling. Vanuit de hal heb je toegang tot alle vertrekken. De royale woonkamer is heerlijk licht en biedt genoeg ruimte voor een comfortabele zithoek en eethoek. Vanuit hier stap je zo het woningbrede balkon op van ruim 10 m² groot en gelegen op het noordoosten; heerlijk voor je eerste kop koffie in de zon. De keuken in hoekopstelling is praktisch ingericht en sluit mooi aan op de woonkamer.

Er zijn twee slaapkamers van goed formaat, ideaal als slaapkamer, werk- of logeerkamer. De badkamer is netjes en voorzien van een ligbad, wastafel en aansluiting voor de wasmachine/droger. Daarnaast is er een apart toilet en een handige (berg)kast met de cv-ketel (Atag, 2017).

Op de begane grond beschikt het appartement over een eigen (fietsen)berging van circa 6 m².

De Vereniging van Eigenaren:
Het complex heeft 41 appartementen en een actieve Vereniging van Eigenaren met een professionele beheerder, ruim reservefonds en een meerjarenonderhoudsplan. De maandelijkse servicekosten voor de woning bedragen €168,39.

Kenmerken:
-woonoppervlakte 68,8m2
-balkon 10,6 m2
-berging 6,2m2
-energielabel C
-oplevering in overleg

Lees de volledige omschrijving

Contact

Kenmerken

Algemeen

Aangeboden sinds
7 november 2025
Status
Verkocht onder voorbehoud
Aanvaarding
In overleg
Soort woonhuis
Appartement, galerijflat
Soort bouw
Bestaande bouw
Bouwjaar
1984
Soort dak
Bitumineuze dakbedekking

Oppervlakten en inhoud

Wonen
68 m²
Gebouwgebonden Buitenruimte
10 m²
Externe bergruimte
6 m²
Perceel
2.500 m²
Inhoud
214 m³

Indeling

Aantal kamers
3 kamers (2 slaapkamers)
Aantal badkamers
1 badkamer
Badkamervoorzieningen
Ligbad, wastafel
Aantal woonlagen
1
Voorzieningen
Glasvezel kabel, mechanische ventilatie

Energie

Energielabel
C
Isolatie
Dubbel glas
Verwarming
Cv ketel
Warm water
Cv ketel
Cv-ketel
Arag (gas gestookt combiketel uit 2017, eigendom)

Kadastrale gegevens

Perceelnaam
Amersfoort K 5096
Oppervlakte
1250 m²
Eigendomssituatie
Volle eigendom
Perceel
AMF00-K-5096
Perceelnaam
Amersfoort K 5096
Oppervlakte
1250 m²
Eigendomssituatie
Volle eigendom
Perceel
AMF00-K-5096
Bekijk alle kenmerken

Overige media