Count Basiestraat 2 Amersfoort

Vraagprijs € 590.000 k.k.

Omschrijving

In de populaire wijk Schothorst staat deze verrassend ruime hoekwoning van maar liefst 172m2! De woning is voorzien van een opbouw op de tweede verdieping én een fijne lichte serre. De woning telt nu vier grote slaapkamers, maar biedt eenvoudig de mogelijkheid om er vijf van te maken. De woning heeft een voortuin én achtertuin.

De ligging van deze woning is ideaal: rustig, groen en toch met alle voorzieningen binnen handbereik. Op loopafstand ligt het prachtige Park Schothorst, perfect voor een ontspannen wandeling, een sportieve ronde of een uitstapje met de kinderen of hond. In de directe omgeving vind je daarnaast twee winkelcentra, diverse sportfaciliteiten, basisscholen en kinderopvang – alles wat je nodig hebt ligt binnen bereik.

Ook de bereikbaarheid is uitstekend. De sfeervolle binnenstad van Amersfoort bevindt zich op nog geen tien minuten fietsen, en voor wie vaak met het openbaar vervoer reist, zijn er bushaltes om de hoek en station Amersfoort Schothorst op slechts enkele minuten lopen. Vanaf daar ben je binnen drie minuten op Amersfoort Centraal. Reis je met de auto? Via de Rondweg rijd je zo de A1 of A28 op.

Wil je komen kijken naar deze leuke woning met vrij uitzicht? Ga dan snel naar de website van Fred de Bas Makelaardij en maak een afspraak voor een bezichtiging en ontdek alles wat deze mooie woning te bieden heeft!
Heb je zelf nog een huis te verkopen dan komen wij graag vrijblijvend en kosteloos langs voor een waardebepaling. Zo weet je financieel precies waar je aan toe bent.

Indeling:
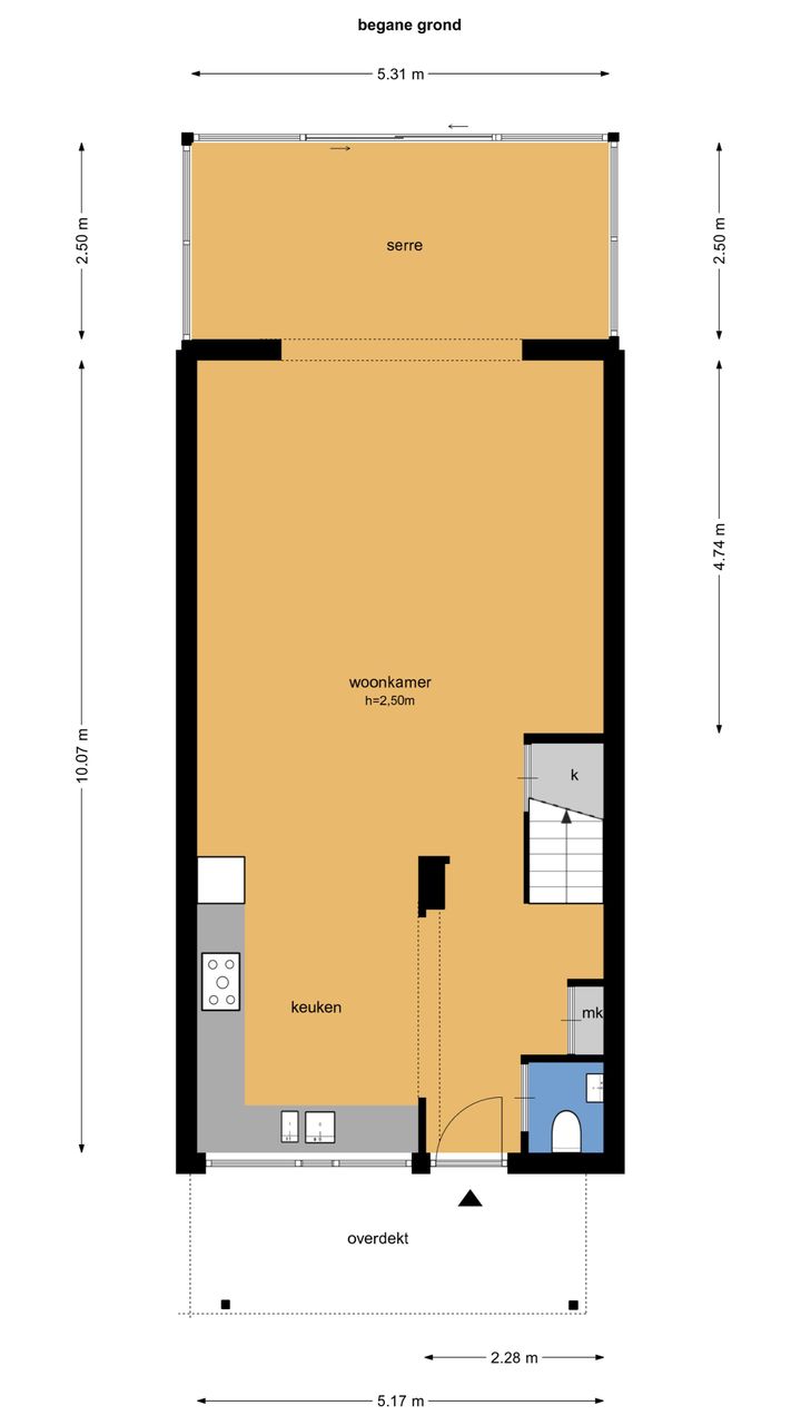
Op de begane grond kom je binnen via een groene voortuin. De open hal geeft toegang tot het toilet en de trapopgang. Aan de voorzijde vind je de ruime open keuken met een stoere, industriële uitstraling. De royale tuingerichte woonkamer sluit mooi aan op de aangebouwde lichte serre, met een grote schuifpui naar de achtertuin. Achterin de tuin staat een praktische (fietsen)schuur van zo’n 6 m².

Op de eerste verdieping is er een overloop met een handige kast voor de wasmachine en cv-ketel (2018). Aan de voorzijde ligt een ruime woningbrede slaapkamer. Aan de achterzijde is een L-vormige slaapkamer en een berging; deze ruimtes zijn eenvoudig te splitsen in twee volwaardige slaapkamers met voldoende daglicht. De nette badkamer heeft een douche, toilet en wastafel.

De tweede verdieping is slim ingedeeld met een overloop, veel bergruimte en twee ruime slaapkamers, elk met een eigen wastafel.

Kenmerken:
-woonoppervlakte ca 172 m2
-perceeloppervlakte 149 m2
-(fietsen)berging in de tuin
-grotendeels kunststof kozijnen en HR++ beglazing
-energielabel B
-oplevering in overleg

Lees de volledige omschrijving

Contact

Kenmerken

Algemeen

vraagprijs
€ 590.000 kosten koper
Aangeboden sinds
7 januari 2026
Status
Beschikbaar
Aanvaarding
In overleg
Soort woonhuis
Eengezinswoning, hoekwoning
Soort bouw
Bestaande bouw
Bouwjaar
1988
Soort dak
Bitumineuze dakbedekking

Oppervlakten en inhoud

Wonen
172 m²
Gebouwgebonden Buitenruimte
8 m²
Externe bergruimte
6 m²
Perceel
149 m²
Inhoud
549 m³

Indeling

Aantal kamers
6 kamers (5 slaapkamers)
Aantal badkamers
1 badkamer
Badkamervoorzieningen
Douche, toilet, wastafel
Aantal woonlagen
3
Voorzieningen
Glasvezel kabel, mechanische ventilatie

Energie

Energielabel
B
Isolatie
Dubbel glas
Verwarming
Cv ketel
Warm water
Cv ketel
Cv-ketel
Remeha (gas gestookt combiketel uit 2018, eigendom)

Kadastrale gegevens

Perceelnaam
Amersfoort K 4042
Oppervlakte
149 m²
Eigendomssituatie
Volle eigendom
Perceel
AMF00-K-4042

Buitenruimte

Tuin
Achtertuin, voortuin, zijtuin
Achtertuin, voortuin
42 m²
Ligging tuin
Zuidwest
Bekijk alle kenmerken

Overige media