Verkocht

Gangboord 88 Amersfoort

Omschrijving

Deze verrassend ruime tussenwoning met een unieke trapezevorm biedt maar liefst 149 m² woonoppervlak en is daarmee een ideale gezinswoning. Met vijf slaapkamers van goed formaat, een inpandige garage en een prettige lichtinval is dit een huis dat ruimte, comfort en flexibiliteit combineert. Dankzij het energielabel A+ woon je hier bovendien comfortabel én energiezuinig.

De woning is onderdeel van het bijzondere woonproject “De Woonboot” in Kattenbroek, een kindvriendelijke en zeer geliefde woonwijk in Amersfoort. De straat is autoluw, wat zorgt voor rust en volop ruimte voor de kinderen om buiten te spelen. Scholen, winkels, speelgelegenheden en een bushalte richting het centrum van Amersfoort liggen op loopafstand. Ook de uitvalswegen A1 en A28 zijn binnen enkele minuten bereikbaar, wat de ligging extra praktisch maakt.

Indeling
Op de begane grond kom je binnen via de voortuin en de entree in de hal met meterkast, toilet, trapopgang, toegang tot de woonkamer en tot de inpandige garage. Vanuit de garage loop je dus direct de woning in; ideaal voor dagelijks gebruik, om de fietsen te plaatsen via de loopdeur of als extra opslagruimte. De garage biedt bovendien mogelijkheden om te worden omgebouwd tot extra woonruimte of bijvoorbeeld een praktijk aan huis.

De tuingerichte woonkamer is ruim opgezet en biedt plek voor een gezellige zithoek bij de houtkachel en een royale eethoek. Grote ramen zorgen voor veel licht en een prettig uitzicht op de tuin. De keuken bevindt zich aan de voorzijde, is voorzien van inbouwapparatuur zoals een inductieplaat, vaatwasser, oven en Quooker. Bovendien biedt de keuken ruimte voor een extra eethoek.

Via de schuifpui in de woonkamer bereik je de diepe, groene tuin op het zuidwesten met groenblijvers, borders met bloeiende planten en volwassen bomen; een fijne plek met een zonnig terras voor rust, vogels en buitenleven. Achter de tuin, bereikbaar via een achterom, is een (fietsen)schuur van circa 6 m² op het gezamenlijke binnenplein.

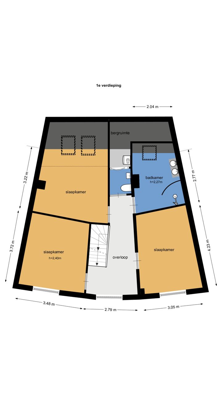
Op de eerste verdieping van de woning is een overloop met toegang tot alle vertrekken. Hier bevinden zich drie slaapkamers van goed formaat, waarvan twee aan de voorzijde en één aan de achterzijde (met airconditioning). De ruime en moderne badkamer is voorzien van een inloopdouche met regendouche en een dubbele wastafel; ook zijn hier de aansluitingen voor wasmachine en droger. De badkamer is voorzien van elektrische vloerverwarming. Het toilet is apart en is bereikbaar vanaf de overloop. Achter het toilet is bovendien een verrassende bergruimte met de cv-opstelling.

Op de tweede verdieping is een overloop met aparte berging en nog eens twee riante slaapkamers, waardoor deze woning in totaal maar liefst vijf volwaardige slaapkamers telt.

Ook op het gebied van duurzaamheid en energiezuinigheid is deze woning helemaal bij de tijd. Het huis heeft energielabel A+, geïsoleerde gevels die in 2022 zijn gereinigd en geschilderd, een geïsoleerd dak waarbij het platte dak is vernieuwd in 2021, en kunststof kozijnen met HR++ beglazing aan de achterzijde van de begane grond (2023). De overige kozijnen zijn van hout met HR-beglazing en in 2022 geschilderd. Verwarming en warm water worden verzorgd door een cv-ketel in combinatie met een hybride warmtepomp. Daarnaast zijn er 8 zonnepanelen van 290 Wp per stuk (geplaatst in 2017, in eigendom) en is er buiten een stopcontact voor het opladen van een hybride auto (1 fase).

Kenmerken:
-Woonoppervlakte 149m2
-Garage 16m2
-Energielabel A+
-Bouwjaar 1993
-8 zonnepanelen
-Diepe, groene achtertuin

Lees de volledige omschrijving

Contact

Kenmerken

Algemeen

Aangeboden sinds
5 maart 2026
Status
Verkocht
Aanvaarding
In overleg
Soort woonhuis
Eengezinswoning, tussenwoning
Soort bouw
Bestaande bouw
Bouwjaar
1993
Soort dak
Bitumineuze dakbedekking

Oppervlakten en inhoud

Wonen
149 m²
Overige inpandige ruimte
16 m²
Externe bergruimte
6 m²
Perceel
140 m²
Inhoud
520 m³

Indeling

Aantal kamers
6 kamers (5 slaapkamers)
Aantal badkamers
1 badkamer
Badkamervoorzieningen
Douche, wastafel
Aantal woonlagen
3
Voorzieningen
Airconditioning, glasvezel kabel, mechanische ventilatie, rookkanaal, zonnecollectoren

Energie

Energielabel
A+
Isolatie
Dakisolatie, muurisolatie, vloerisolatie
Verwarming
Cv ketel, open haard, vloerverwarming gedeeltelijk, warmtepomp
Warm water
Cv ketel
Cv-ketel
Remeha (gas gestookt combiketel uit 2023, eigendom)

Kadastrale gegevens

Perceelnaam
Amersfoort O 2623
Oppervlakte
140 m²
Eigendomssituatie
Volle eigendom
Perceel
AMF00-O-2623

Buitenruimte

Tuin
Achtertuin, voortuin
Achtertuin
41 m²
Ligging tuin
Zuidwest

Garage

Capaciteit
1 auto
Voorzieningen
Voorzien van elektra, voorzien van verwarming
Bekijk alle kenmerken

Overige media