Verkocht

Schuilenburgerweg 22 Amersfoort

Omschrijving

Dit royale 3-kamerappartement van 99 m² biedt een fijne combinatie van ruimte, licht en comfort op een aantrekkelijke locatie in Amersfoort. Met een vrij uitzicht en een prettige ruimtelijke indeling is dit een woning waar je je direct thuis zal voelen.

Gelegen in het geliefde complex “De Sterflat”, tussen de Barneveldse Beek en het Valleikanaal, woon je hier rustig en ook centraal. Op loopafstand is het winkelcentrum Euterpeplein, terwijl de historische binnenstad, het Centraal Station, een gezondheidscentrum en Zwembad Amerena binnen enkele minuten fietsen bereikbaar zijn.

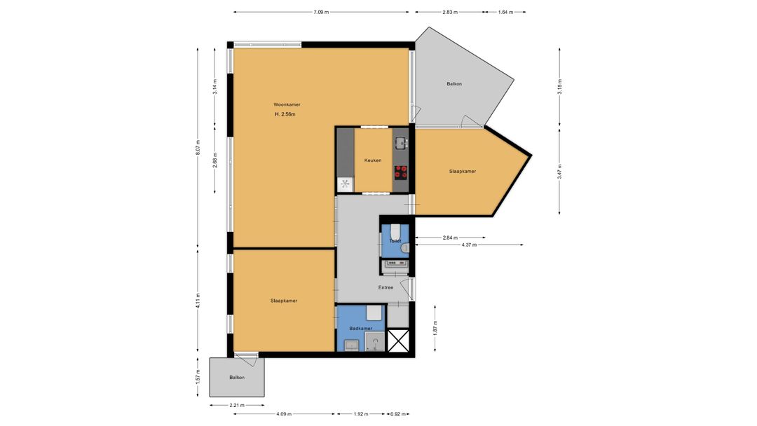
Indeling:
Je komt binnen in een ruime hal met toegang tot de verschillende vertrekken. Hier is ook een praktische bergkast/garderobe en een toilet.

De royale L-vormige woonkamer is een echte blikvanger. Dankzij de hoekligging geniet je hier van een prachtige lichtinval en een ruimtelijk gevoel. Er is volop plek voor een gezellige zithoek, een ruime eethoek en ook bijvoorbeeld nog een werk- of leesplek. Vanuit de woonkamer kom je op het grote balkon, waar je heerlijk kunt ontspannen en genieten van het vrije uitzicht.

De nette keuken is uitgevoerd in een praktische parallelopstelling en beschikt over een vaatwasser, inductiekookplaat en afzuigkap. De keuken is zowel bereikbaar vanuit de woonkamer als de hal.

Er zijn twee slaapkamers van goed formaat. Eén van de slaapkamers geeft toegang tot de badkamer met inloopdouche. wastafel en wasmachineaansluiting. Beide slaapkamers hebben een directe toegang tot een balkon. In totaal zijn er twee balkons (circa 11 m² en 3,5 m²), waardoor je op verschillende momenten van de dag kunt kiezen voor zon of schaduw.

Het appartementencomplex beschikt over een afgesloten hoofdentree met intercom, hal en brievenbussen, lift, trappenhuis en toegang naar de berging. Tevens bevindt zich op de begane grond een gemeenschappelijke fietsenstalling en een afgesloten parkeerterrein voor de bewoners.

Vereniging van Eigenaren:
De Vereniging van Eigenaren is actief en wordt professioneel beheerd door ARTEA. Er is een reservefonds en een meerjarenonderhoudsplan aanwezig, waarbij verduurzaming een belangrijke rol speelt voor de VvE. Zo is in 2024 het dak vernieuwd en geïsoleerd en zijn er twee nieuwe zonneboilers geplaatst. De servicekosten bedragen € 325,67 per maand, met een aanvullend voorschot voor stookkosten van € 200 per maand.

Kenmerken:
– de woonoppervlakte is 99m2
– er zijn twee balkons (3,5m2 en 11m2) op zuidoost en op zuidwest
– een berging (4,6m2) in de onderbouw
– het gebouw is voorzien van lift
– de woning heeft energielabel C
– de oplevering gaat in overleg en kan eventueel snel

Lees de volledige omschrijving

Contact

Kenmerken

Algemeen

Aangeboden sinds
30 maart 2026
Status
Verkocht
Aanvaarding
In overleg
Soort woonhuis
Appartement, portiekflat
Soort bouw
Bestaande bouw
Bouwjaar
1972

Oppervlakten en inhoud

Wonen
99 m²
Gebouwgebonden Buitenruimte
14 m²
Externe bergruimte
4 m²
Perceel
1.036 m²
Inhoud
320 m³

Indeling

Aantal kamers
3 kamers (2 slaapkamers)
Aantal badkamers
1 badkamer
Badkamervoorzieningen
Douche, wastafel
Aantal woonlagen
1
Voorzieningen
Glasvezel kabel, lift, mechanische ventilatie, zonnecollectoren

Energie

Energielabel
C
Isolatie
Gedeeltelijk dubbel glas, muurisolatie
Verwarming
Blokverwarming
Warm water
Centrale voorziening

Kadastrale gegevens

Perceelnaam
Amersfoort A 5285
Oppervlakte
1036 m²
Eigendomssituatie
Volle eigendom
Perceel
AMF00-A-5285
Bekijk alle kenmerken

Overige media